關於我們
工程實績
2018
2019
2020
2021
2022
施工規劃
2D圖庫
3D圖庫
產品介紹
CNS
施工架
配件
CNS活動施工架
非CNS
施工架
配件
CNS4750 Q&A
施工架範例
預估施工架數量
租賃專區
CNS
施工架
配件
CNS活動施工架
非CNS
施工架
配件
補修業務
補修工程實績
施工說明
施工架組裝流程
活動架組裝流程
聯絡我們
聯絡我們
相關鏈接
互助營造
首 頁
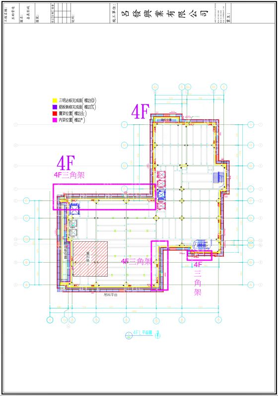
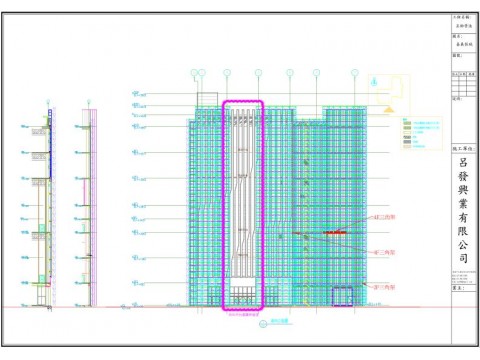
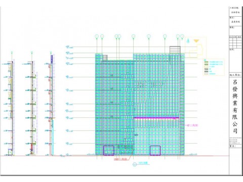
2D圖庫
互助營造
More
More
東向立面圖
More
北向立面圖
More
More
×
小叮嚀
購物車沒有任何商品